Tên dự án: Thiết kế 03 cầu qua sông Đà và hệ thống đường ngang phía tây sông Đà, huyện Mường Tè, tỉnh Lai châu.
Chủ đầu tư: Sở Giao thông vận tải tỉnh Lai Châu
Nhằm khắc phục tình trạng cô lập của địa bàn huyện Mường Tè và vùng lân cận sau khi tích nước lòng hồ thủy điện Lai Châu; Đảm bảo Quốc phòng – An ninh; phục vụ công tác di dân tái định cư thủy điện Lai Châu, sắp xếp dân cư, xây dựng các vùng kinh tế, tạo mạng lưới giao thông đường bộ nối liền giữa các khu 2 bên bờ sông Đà, phục vụ đời sống phát triển kinh tế, dân sinh của đồng bào các dân tộc. Đồng thời tạo sự giao lưu giữa các khu, điểm tái định cư dọc bờ phía tây sông Đà.
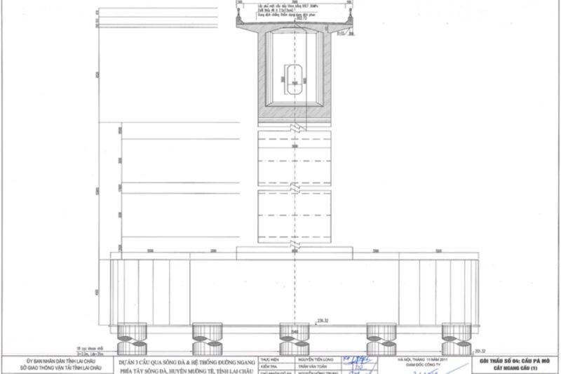
Dự án gồm 03 cầu lớn bắc qua sông Đà (cầu Pá Mô, cầu Kan Hồ, cầu Nậm Khao) và 04 đoạn tuyến với tổng chiều dài 139,52 Km.














